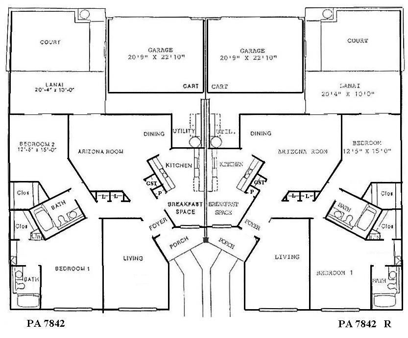
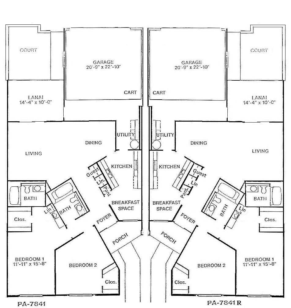
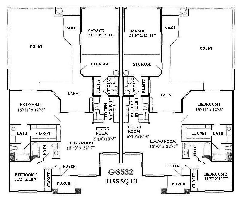
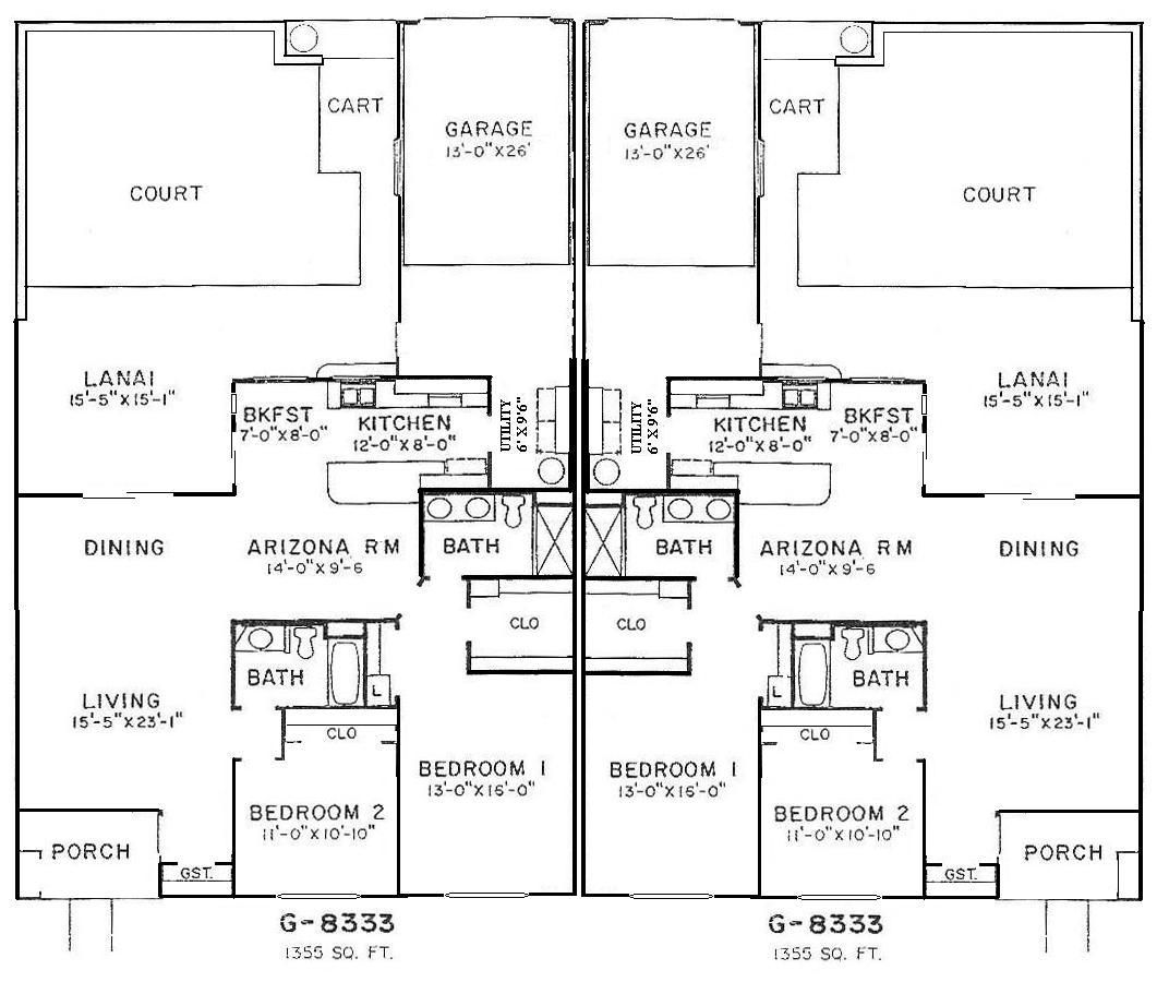
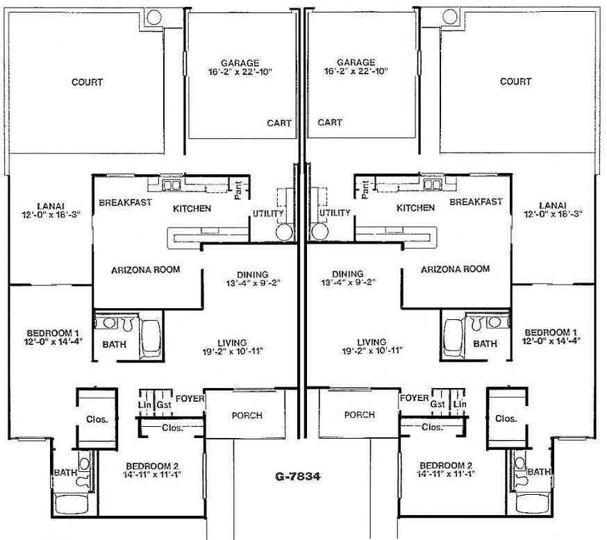
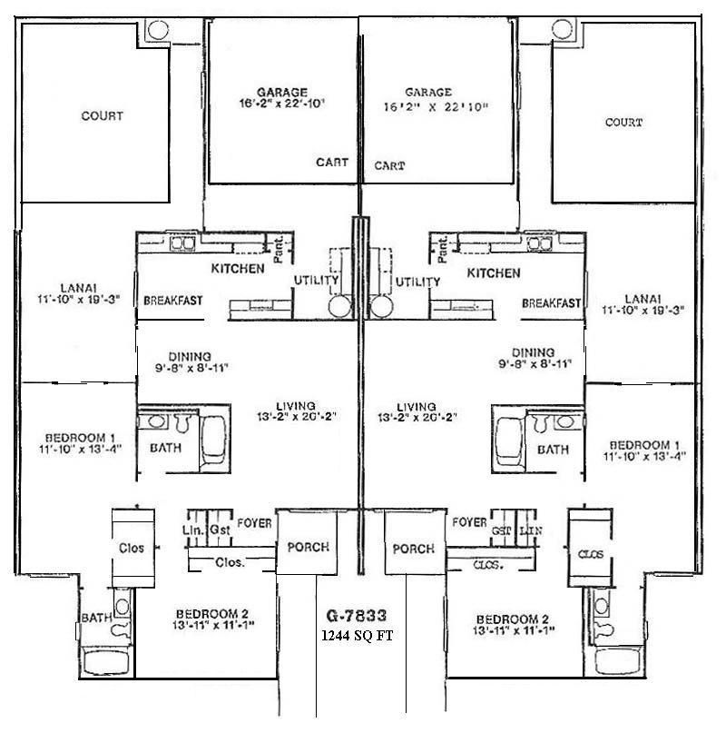
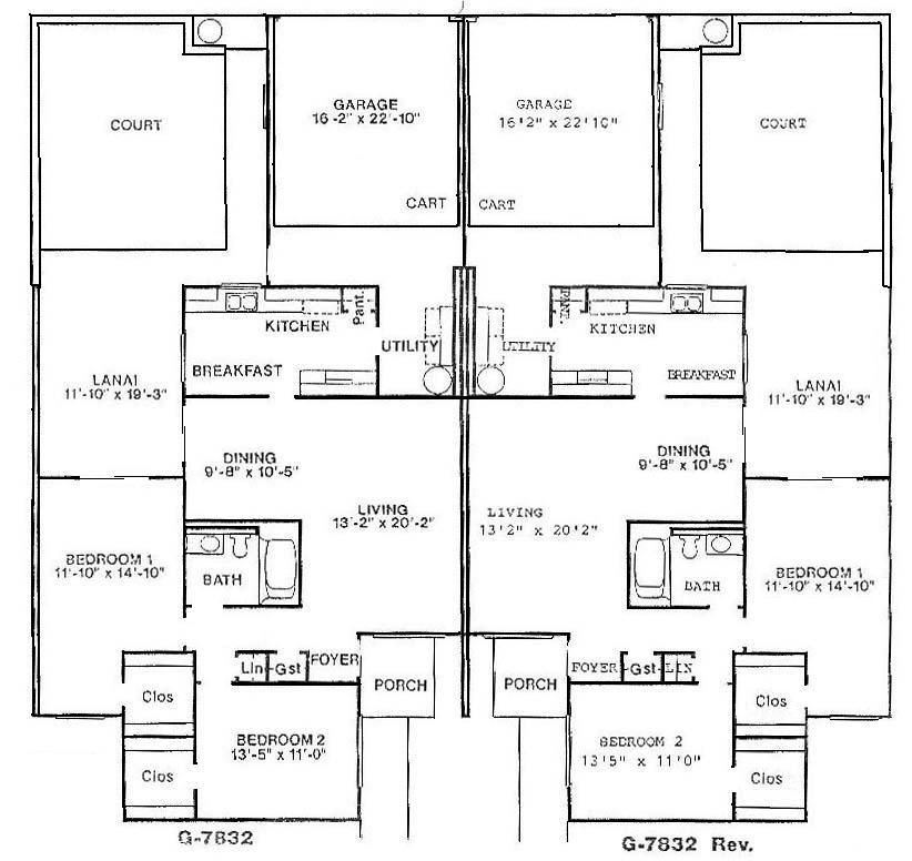
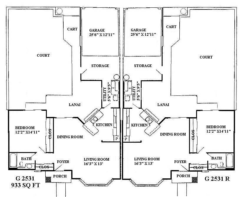
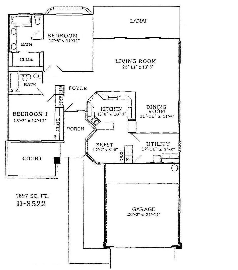
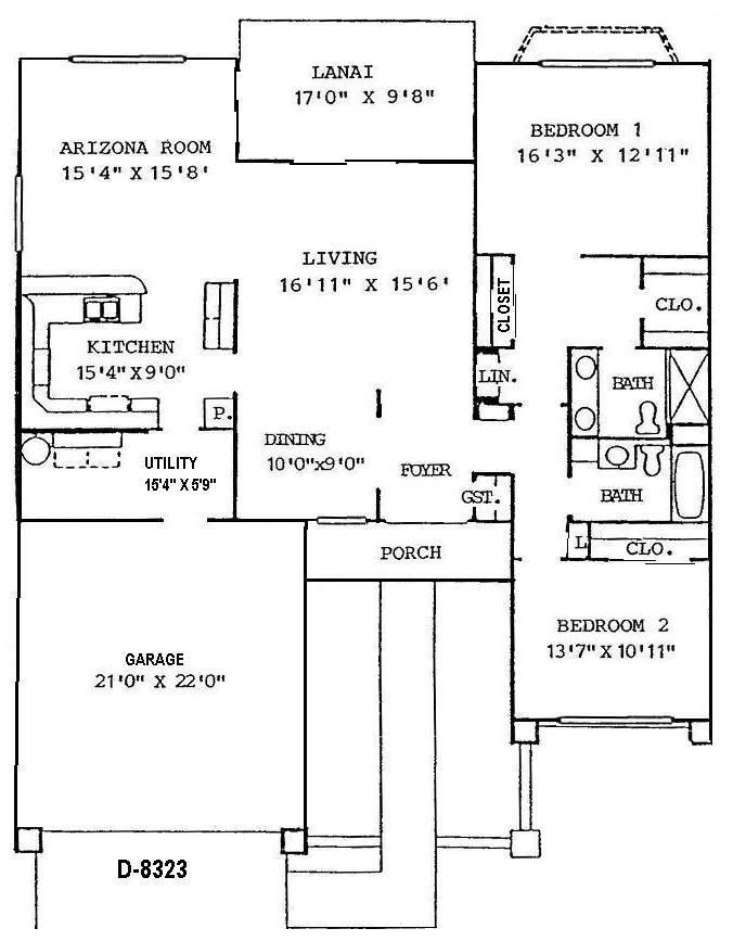
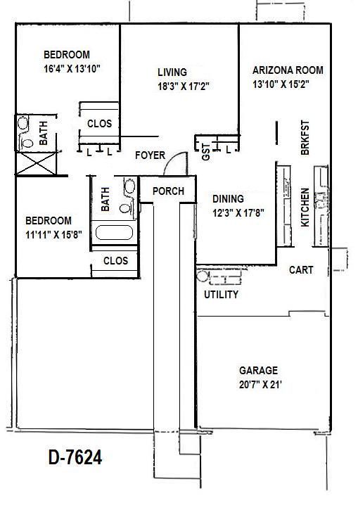
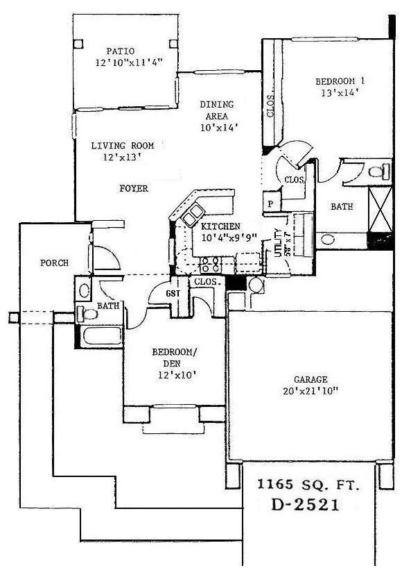
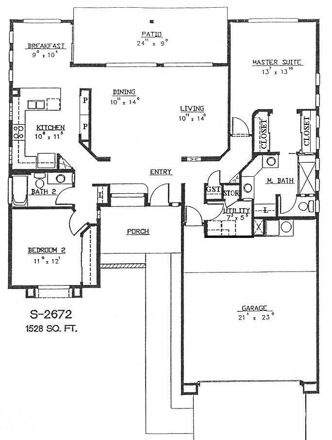
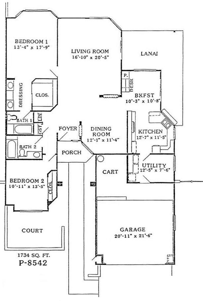
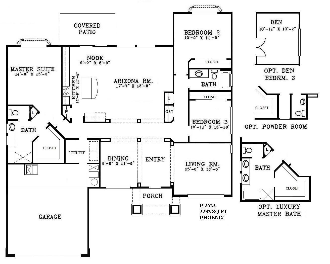
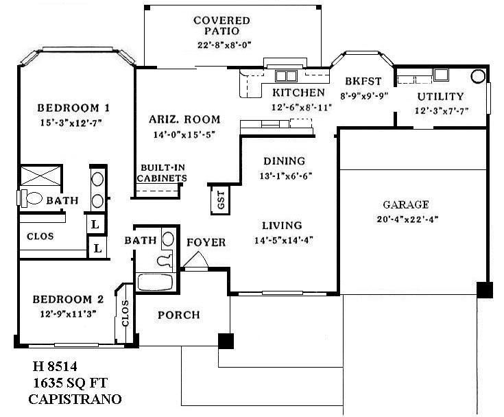
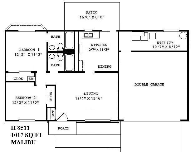
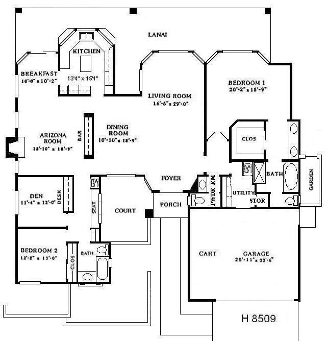
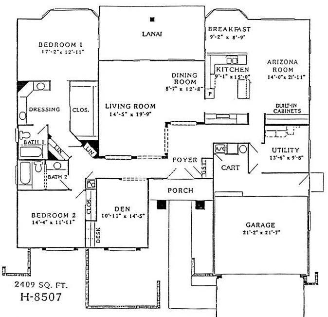
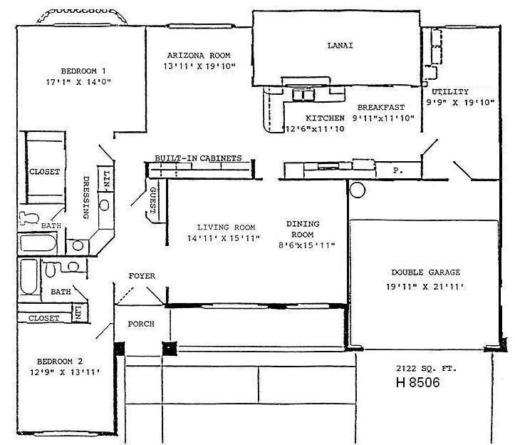
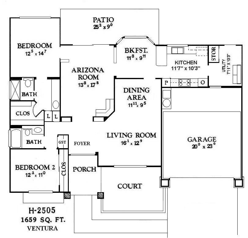
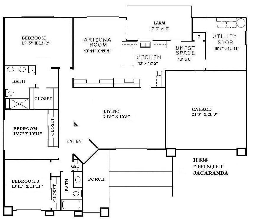
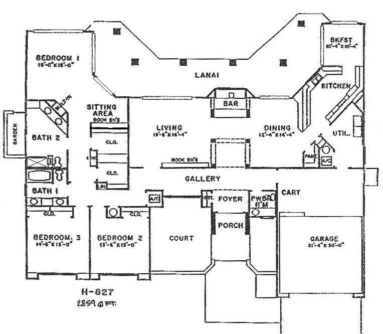
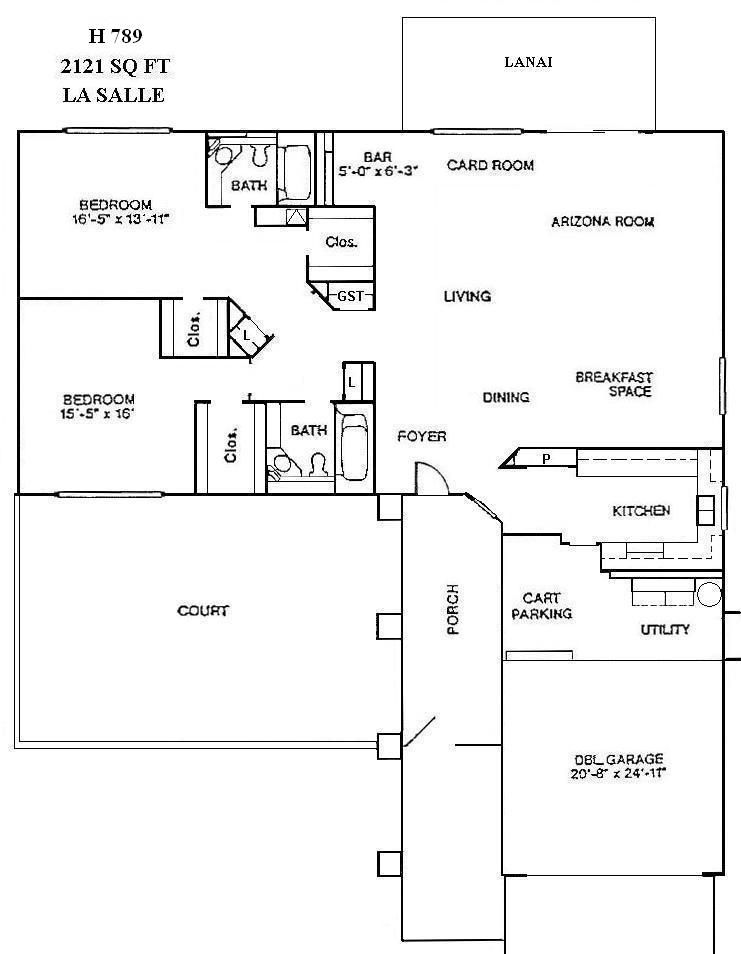
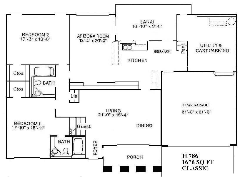
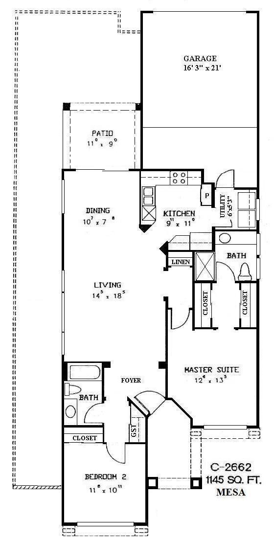
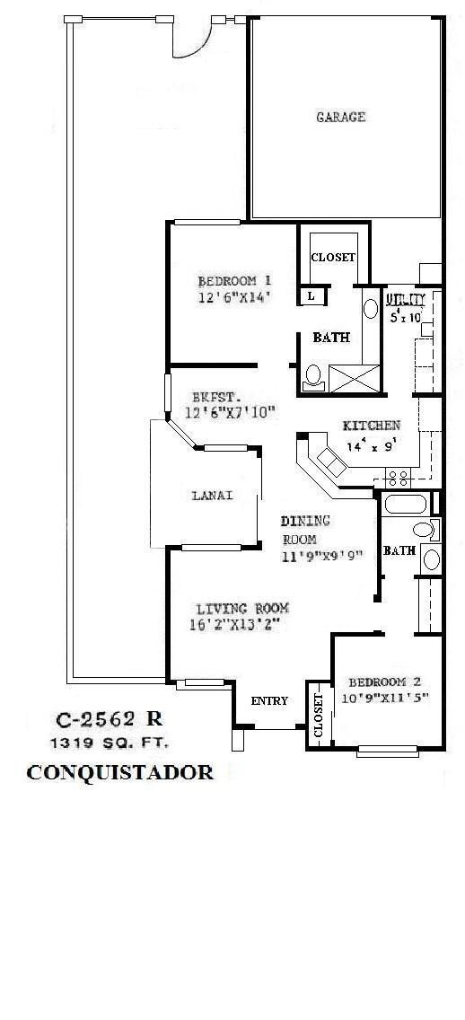
Sun City West Floor Plans
Explore Sun City West floor plans
including patio homes, garden homes, and single-family residences
Explore Sun City West floor plans including patio homes, garden homes, and single-family residences designed for comfortable 55+ living.
We know finding the right patio home is about more than just a floor plan—it's about lifestyle. In Arizona's West Valley, our homes blend comfort and functionality for low-maintenance living with style. With my background in construction and real estate, I can guide you through the unique features of communities like Sun City West and Surprise. Whether you prefer open spaces or cozy retreats, I'm here to help you find a home that matches your vision. Let's explore the possibilities together!
We know that finding the right floor plan for your garden home is about crafting a lifestyle, not just square footage. With strong roots in Arizona's West Valley, especially in communities like Sun City West and Surprise, Michael provides valuable insights into the best layout options for your everyday living. Whether you prefer open-concept designs for entertaining or cozy spaces for relaxation, our expertise in construction and real estate offers tailored guidance. Let us help you find the ideal floor plan that enhances your Arizona lifestyle!
We're dedicated to helping you find the perfect floor plan in Arizona's West Valley. With my experience in construction and real estate, I understand what makes a house feel like home. Whether you prefer the spacious layouts in Sun City West or the cozy designs in Surprise, I can help you navigate your options. I'm passionate about these amenity-rich communities and can guide you in choosing a floor plan that enhances your Arizona living experience. Let's find the ideal space for making memories!



















































































































































